Rzut dachu to kluczowy element w projektowaniu i budowie dachu, który przedstawia jego kształt oraz rozmieszczenie głównych elementów, takich jak połacie, kominy czy okna dachowe. Jest niezbędny zarówno podczas planowania nowej konstrukcji, jak i przy remontach, ponieważ pozwala dokładnie określić wymiary i strukturę dachu.
Wykonanie rzutu dachu wymaga precyzji i znajomości podstawowych zasad geometrii. Dzięki niemu można nie tylko zaplanować prace budowlane, ale także uniknąć błędów, które mogą wpłynąć na stabilność całego budynku. W tym artykule dowiesz się, jak poprawnie wykonać rzut dachu, jakie elementy muszą się w nim znaleźć oraz jak obliczyć powierzchnię dachu na podstawie jego rzutu.
Kluczowe informacje:- Rzut dachu to schemat przedstawiający kształt i rozmieszczenie elementów dachu w widoku z góry.
- Jest niezbędny do planowania konstrukcji dachu oraz uniknięcia błędów budowlanych.
- Do wykonania rzutu potrzebne są precyzyjne pomiary i podstawowa znajomość geometrii.
- Powierzchnię dachu oblicza się, dzieląc rzut na proste figury geometryczne i sumując ich pola.
- Rzut dachu powinien zawierać elementy takie jak połacie, kominy, okna dachowe i kalenice.
Czym jest rzut dachu i dlaczego jest tak ważny?
Rzut dachu to techniczny rysunek przedstawiający kształt i układ dachu w widoku z góry. Jest niezbędny zarówno podczas projektowania nowych budynków, jak i przy remontach istniejących konstrukcji. Dzięki niemu można precyzyjnie zaplanować rozmieszczenie elementów takich jak połacie, kominy czy okna dachowe.
Właściwie wykonany rzut dachu pozwala uniknąć błędów konstrukcyjnych, które mogą wpłynąć na stabilność całego budynku. Jest również podstawą do obliczenia powierzchni dachu oraz doboru odpowiednich materiałów budowlanych. Bez niego trudno wyobrazić sobie efektywną pracę architektów i wykonawców.
Jak przygotować rzut dachu krok po kroku
Przygotowanie rzutu dachu zaczyna się od dokładnych pomiarów. Najpierw należy zmierzyć wymiary budynku, a następnie określić kąt nachylenia dachu. Te dane są kluczowe do stworzenia precyzyjnego schematu.
Kolejnym krokiem jest przeniesienie pomiarów na papier lub do programu komputerowego. Warto użyć specjalistycznych narzędzi, takich jak linijki, kątomierze czy oprogramowanie CAD. Dzięki nim można dokładnie odwzorować kształt dachu i jego elementy.
Ostatnim etapem jest naniesienie na rzut dachu wszystkich niezbędnych szczegółów, takich jak kominy, okna dachowe czy systemy odprowadzania wody. To właśnie te elementy decydują o funkcjonalności i estetyce dachu.
- Miara taśmowa do dokładnych pomiarów
- Kątomierz do określenia nachylenia dachu
- Linijka i ołówek do ręcznego rysowania
- Oprogramowanie CAD do tworzenia cyfrowych projektów
Podstawowe elementy, które musi zawierać rzut dachu
Każdy rzut dachu powinien zawierać kilka kluczowych elementów. Są to przede wszystkim połacie dachowe, które określają kształt i nachylenie dachu. Ważne są również kominy, okna dachowe oraz systemy rynnowe.
Te elementy nie tylko wpływają na wygląd dachu, ale także na jego funkcjonalność. Na przykład, prawidłowe rozmieszczenie okien dachowych zapewnia odpowiednie doświetlenie poddasza, a system rynnowy chroni budynek przed zalaniem.
Czytaj więcej: Dachy naczółkowe: ich zalety, historia i zastosowanie w budownictwie
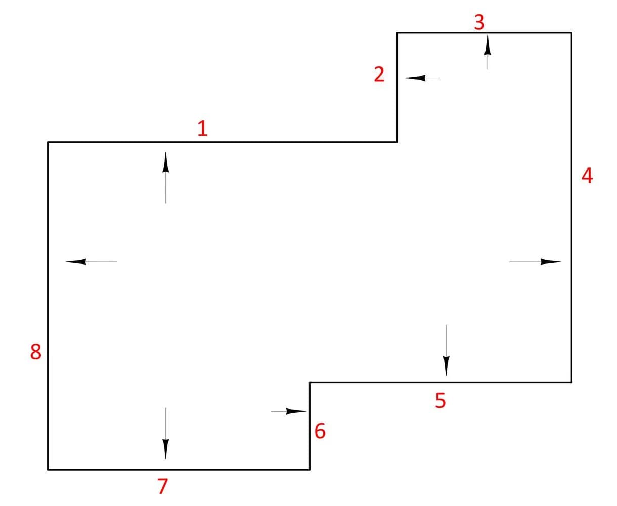
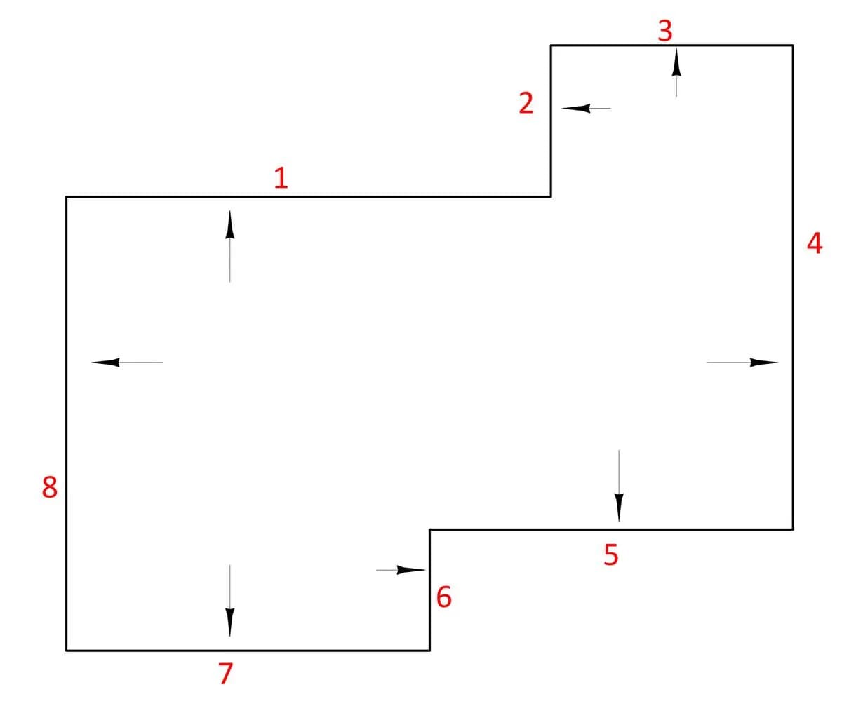
Jak obliczyć powierzchnię dachu na podstawie rzutu
Obliczenie powierzchni dachu na podstawie rzutu dachu wymaga podzielenia go na proste figury geometryczne. Najczęściej są to prostokąty, trójkąty lub trapezy, których pola można łatwo obliczyć. Następnie wystarczy zsumować powierzchnie wszystkich figur, aby uzyskać całkowitą powierzchnię dachu.
Na przykład, jeśli dach składa się z dwóch prostokątnych połaci, każda o wymiarach 10 m x 5 m, ich łączna powierzchnia wyniesie 100 m². W przypadku bardziej skomplikowanych kształtów, takich jak dachy wielospadowe, podział na mniejsze figury jest niezbędny.
| Typ dachu | Metoda obliczeń |
| Dach płaski | Obliczenie powierzchni jako prostokąta |
| Dach dwuspadowy | Podzielenie na dwa trójkąty lub prostokąty |
| Dach czterospadowy | Podzielenie na trapezy i trójkąty |
Najczęstsze błędy przy tworzeniu rzutu dachu i jak ich uniknąć
Jednym z najczęstszych błędów przy tworzeniu rzutu dachu są nieprecyzyjne pomiary. Nawet niewielki błąd w wymiarach może prowadzić do poważnych problemów podczas budowy. Dlatego zawsze warto dokładnie sprawdzić pomiary przed rozpoczęciem prac.
Innym częstym błędem jest pominięcie ważnych elementów, takich jak kominy czy okna dachowe. Aby tego uniknąć, należy dokładnie przeanalizować projekt i upewnić się, że wszystkie detale zostały uwzględnione.

Przykłady rzutów dachów dla różnych typów budynków
W przypadku budynków mieszkalnych, rzut dachu często obejmuje proste kształty, takie jak dachy dwuspadowe lub czterospadowe. Są one łatwe do obliczenia i zapewniają dobrą funkcjonalność oraz estetykę.Dla budynków komercyjnych, takich jak magazyny czy biurowce, stosuje się zazwyczaj dachy płaskie lub lekko spadziste. Ich rzut dachu jest prostszy, ale wymaga uwzględnienia dodatkowych elementów, takich jak systemy wentylacyjne.
W przypadku budynków przemysłowych, takich jak hale produkcyjne, rzut dachu może być bardziej skomplikowany. Często obejmuje duże powierzchnie i wymaga uwzględnienia specjalnych konstrukcji, takich jak świetliki dachowe.
Dlaczego precyzja w rzucie dachu jest kluczowa?
W artykule podkreśliliśmy, że precyzyjny rzut dachu to podstawa skutecznego planowania i budowy. Nawet niewielkie błędy w pomiarach mogą prowadzić do poważnych problemów konstrukcyjnych, takich jak nierównomierne obciążenie dachu czy problemy z odprowadzaniem wody. Dlatego zawsze zalecamy dokładne sprawdzanie wymiarów przed rozpoczęciem prac.Przykłady z artykułu pokazują, że różne typy budynków wymagają różnych podejść do tworzenia rzutu dachu. W przypadku domów mieszkalnych często wystarczą proste kształty, podczas gdy budynki przemysłowe mogą wymagać bardziej skomplikowanych rozwiązań, takich jak świetliki dachowe. Wszystko to wpływa na finalną funkcjonalność i trwałość konstrukcji.
Podsumowując, rzut dachu to nie tylko schemat, ale narzędzie, które pozwala uniknąć kosztownych błędów. Dzięki niemu możemy precyzyjnie zaplanować każdy element dachu, od połaci po systemy wentylacyjne, co przekłada się na bezpieczeństwo i efektywność całego budynku.





